$2,350,000
$2,399,000
2.0%For more information regarding the value of a property, please contact us for a free consultation.
14 Beds
8 Baths
SOLD DATE : 10/20/2025
Key Details
Sold Price $2,350,000
Property Type Multi-Family
Sub Type Multiplex
Listing Status Sold
Purchase Type For Sale
Approx. Sqft 3500-5000
Subdivision 3502 - Overbrook/Castle Heights
MLS Listing ID X12219218
Sold Date 10/20/25
Style 2-Storey
Bedrooms 14
Annual Tax Amount $3,659
Tax Year 2024
Property Sub-Type Multiplex
Property Description
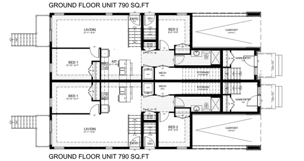
Brand-New Six-Plex in Prime Ottawa Location CMHC MLI Eligible. Incredible opportunity for investors! This brand-new, purpose-built six-plex is in one of Ottawa's most sought-after rental corridors. Each side of this modern semi-detached property includes a spacious upper unit with 3 bedrooms and 2 bathrooms, and two lower units offering 2 bedrooms and 1 bathroom, six units total. All units feature open-concept layouts, luxury vinyl flooring, quartz countertops, in-unit laundry, and high ceilings, designed to attract quality tenants seeking style and function. This turnkey building offers low-maintenance living with durable exterior finishes including brick veneer, James Hardie siding, aluminum accents, triple-glazed windows, and pressure-treated decks and fencing. Interior finishes include melamine cabinetry, pot lighting, modern fixtures, smooth ceilings, and ceramic tile backsplash. Each unit is separately metered for gas and electricity, with efficient forced-air heating, central A/C, HRVs, and on-demand hot water systems (all rented through Enercare). Located minutes from downtown, the University of Ottawa, Carleton University, parks, transit, and bike paths, this is an ideal rental location for students, families, and professionals. Carport, interlock walkways, landscaped front and backyards make this a high-performing investment. No rent control on new builds allows market rents from day one. Still time to customize interior finishes! HST applies, rebates available to eligible buyers.
Location
Province ON
County Ottawa
Community 3502 - Overbrook/Castle Heights
Area Ottawa
Zoning R3M
Rooms
Family Room No
Basement Finished, Separate Entrance
Kitchen 6
Separate Den/Office 4
Interior
Interior Features Separate Heating Controls, Separate Hydro Meter
Cooling Central Air
Exterior
Exterior Feature Porch
Pool None
Roof Type Asphalt Shingle
Lot Frontage 50.0
Lot Depth 104.0
Total Parking Spaces 4
Building
Building Age New
Foundation Poured Concrete
Others
Senior Community No
ParcelsYN No
Read Less Info
Want to know what your home might be worth? Contact us for a FREE valuation!

Our team is ready to help you sell your home for the highest possible price ASAP

"My job is to find and attract mastery-based agents to the office, protect the culture, and make sure everyone is happy! "





